Please do not leave this page until complete. This can take a few moments.
Photo / Courtesy MDI Bio Lab
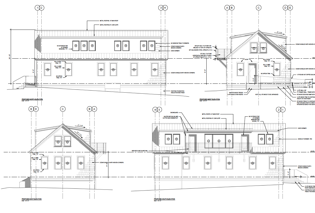
Neal Laboratory has long supported seasonal research, but its layout and infrastructure were limiting due to small, compartmentalized labs.
The Mount Desert Island Biological Laboratory, a nonprofit hub for the science of aging and regeneration in Bar Harbor, received a $1.6 million federal investment to modernize a century-old research building to house a translational science and entrepreneurial initiative program called MDI Bioscience.
Renovations to the Neal Laboratory building will include 21st-century research facilities, offices and meeting space, according to a news release.
The federal appropriation, secured by U.S. Sens. Angus King, I-Maine, and Susan Collins, R-Maine, will fund the entire project cost.
“MDI Bioscience is filling an important need at the MDI Bio Lab, as our faculty apply their original research and expertise to real-world problems in human health,” said Hermann Haller, the lab’s president.
MDI Bioscience's mission will be to provide industry-grade research capabilities and accelerate early-stage development of new therapies for human health.
Demolition began last month and the updates are expected to be completed in September 2026.
The modern, flexible space is designed to be able to support complex workflows and partnerships. It will add almost 2,000 square feet of research space to complement more than 10,000 square feet of infrastructure at the Kathryn W. Davis Center for Regenerative Biology and Aging, established in 2012, and other facilities.
Neal Laboratory has long supported seasonal research, but its layout and infrastructure were limited due to small, compartmentalized labs on the first floor and a half-story upstairs with low ceilings and minimal meeting space.
The redesign will accommodate year-round operations.
The first floor will become a 900-square-foot, open-plan laboratory with room for roughly a dozen staff, significantly expanded bench space and a bio-secure procedure room for sensitive experimental work. There will be an entry area, a common space and a restroom.
Upstairs, workers are removing the existing structure entirely and rebuilding it with full headroom, doubling the usable space to nearly 1,000 square feet. The second floor will feature two private offices, a large conference room overlooking Frenchman Bay and a break room with a kitchenette.
A dedicated, standalone HVAC system will supply controlled air exchange and negative pressure to safeguard research integrity, said Mark Hanscome, the facilities manager.
Energy-efficient heat pumps will serve the upper floor and common areas. The project includes extensive structural reinforcements to support the expanded second story.
The project team is led by gbA Architecture & Planning in Burlington, Vt., and E.L Shea Builders & Engineers of Ellsworth.
The renovation is part of a larger campus plan that includes recent upgrades to another research facility called the Halsey Building; the upgrades will support animal husbandry for zebrafish, African turquoise killifish and other models for human health that MDI Bioscience uses in its quest to accelerate drug discovery.
“We are expanding capacity, attracting new investigators and equipping the lab to pursue innovative solutions to challenges in human health with greater precision and efficiency,” Haller said.
The Giving Guide helps nonprofits have the opportunity to showcase and differentiate their organizations so that businesses better understand how they can contribute to a nonprofit’s mission and work.
Learn More
Work for ME is a workforce development tool to help Maine’s employers target Maine’s emerging workforce. Work for ME highlights each industry, its impact on Maine’s economy, the jobs available to entry-level workers, the training and education needed to get a career started.
Learn More
Whether you’re a developer, financer, architect, or industry enthusiast, Groundbreaking Maine is crafted to be your go-to source for valuable insights in Maine’s real estate and construction community.
Learn moreThe Giving Guide helps nonprofits have the opportunity to showcase and differentiate their organizations so that businesses better understand how they can contribute to a nonprofit’s mission and work.
Work for ME is a workforce development tool to help Maine’s employers target Maine’s emerging workforce. Work for ME highlights each industry, its impact on Maine’s economy, the jobs available to entry-level workers, the training and education needed to get a career started.
Whether you’re a developer, financer, architect, or industry enthusiast, Groundbreaking Maine is crafted to be your go-to source for valuable insights in Maine’s real estate and construction community.
In order to use this feature, we need some information from you. You can also login or register for a free account.
By clicking submit you are agreeing to our cookie usage and Privacy Policy
Already have an account? Login
Already have an account? Login
Want to create an account? Register
In order to use this feature, we need some information from you. You can also login or register for a free account.
By clicking submit you are agreeing to our cookie usage and Privacy Policy
Already have an account? Login
Already have an account? Login
Want to create an account? Register
This website uses cookies to ensure you get the best experience on our website. Our privacy policy
To ensure the best experience on our website, articles cannot be read without allowing cookies. Please allow cookies to continue reading. Our privacy policy
0 Comments